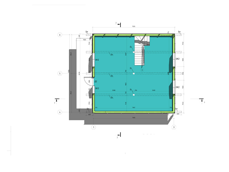
Фундамент — деревянный ростверк на винтовых сваях
Несущие стены — SIP панель (174мм)
Покрытие — металочерепица
Наружная отделка — покраска, рейка "под фахверк"
+7(922) 050-05-04
ЯНАО, г. Губкинский
Фундамент — деревянный ростверк на винтовых сваях
Несущие стены — SIP панель (174мм)
Покрытие — металочерепица
Наружная отделка — покраска, рейка "под фахверк"





