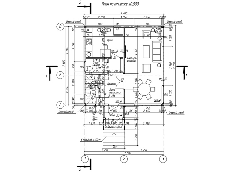
Фундамент — деревянный ростверк на винтовых сваях
Несущие стены — SIP панель (174мм)
Покрытие — битумная черепица
Наружная отделка — штукатурка, блокхаус
+7(922) 050-05-04
ЯНАО, г. Губкинский
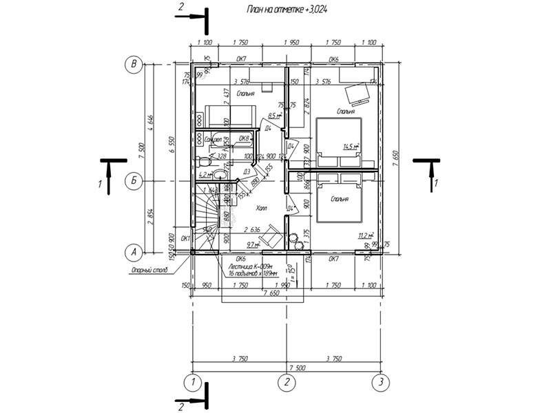
Фундамент — деревянный ростверк на винтовых сваях
Несущие стены — SIP панель (174мм)
Покрытие — битумная черепица
Наружная отделка — штукатурка, блокхаус





