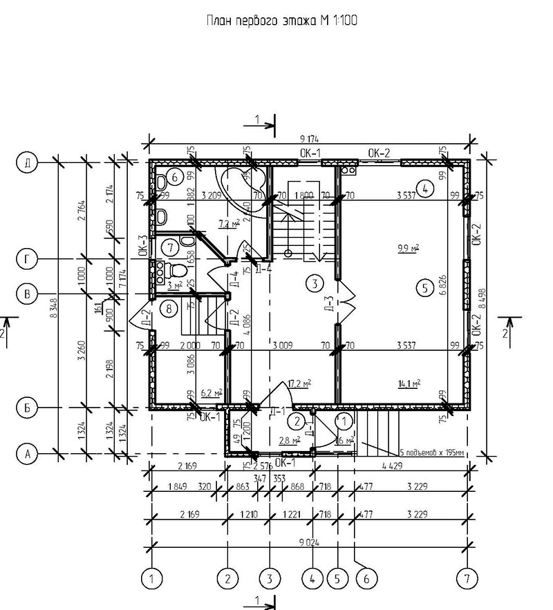
Фундамент — ленточный
Несущие стены — SIP панель (174мм)
Покрытие — мягкая черепица
Наружная отделка —металический сайдинг
+7(922) 050-05-04
ЯНАО, г. Губкинский
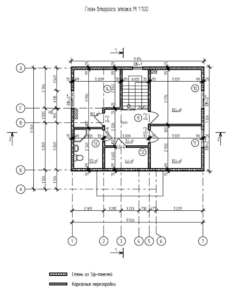
Фундамент — ленточный
Несущие стены — SIP панель (174мм)
Покрытие — мягкая черепица
Наружная отделка —металический сайдинг





