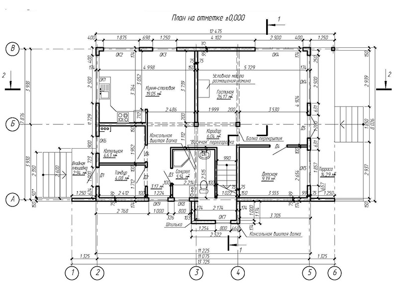
Фундамент — деревянный ростверк на ж/б столбах
Несущие стены — SIP панель (174мм)
Покрытие — металочерепица
Наружная отделка — штукатурка, облицовочная плитка, природный камень
+7(922) 050-05-04
ЯНАО, г. Губкинский
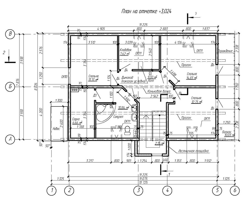
Фундамент — деревянный ростверк на ж/б столбах
Несущие стены — SIP панель (174мм)
Покрытие — металочерепица
Наружная отделка — штукатурка, облицовочная плитка, природный камень





