Фундамент — ж/б плита
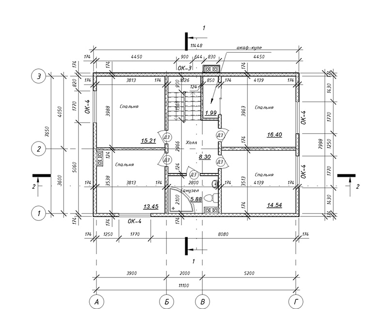
Несущие стены — SIP панель (174мм)
Покрытие — битумная черепица
Наружная отделка — штукатурка, облицовочная плитка, природный камень
+7(922) 050-05-04
ЯНАО, г. Губкинский
Фундамент — ж/б плита
Несущие стены — SIP панель (174мм)
Покрытие — битумная черепица
Наружная отделка — штукатурка, облицовочная плитка, природный камень





