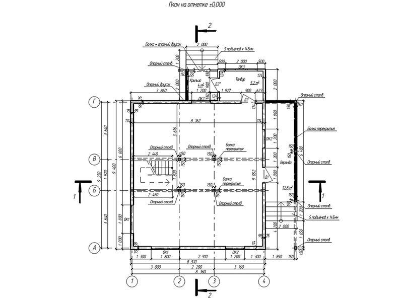
Фундамент — монолитный ж/б
Несущие стены — SIP панель (174мм)
Покрытие — битумная или металочерепица
Наружная отделка — штукатурка, облицовочная плитка, природный камень
+7(922) 050-05-04
ЯНАО, г. Губкинский
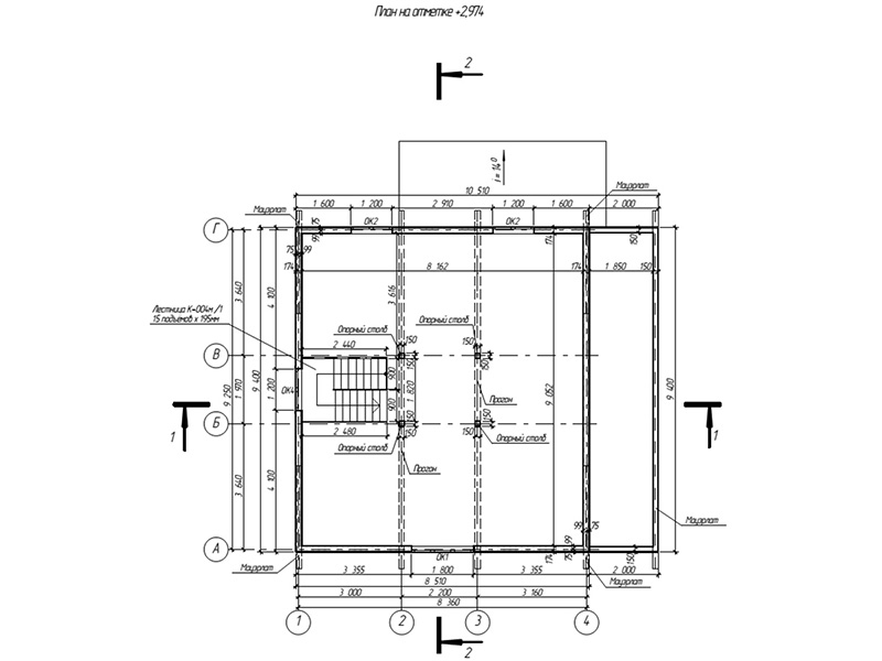
Фундамент — монолитный ж/б
Несущие стены — SIP панель (174мм)
Покрытие — битумная или металочерепица
Наружная отделка — штукатурка, облицовочная плитка, природный камень





